“Обмерные работы (содержание, цель, документация, презентация
Содержание
- 2. Обмерные работы
- 3. Классификация обмерных работ
- 6. Причины проведения обмерных работ
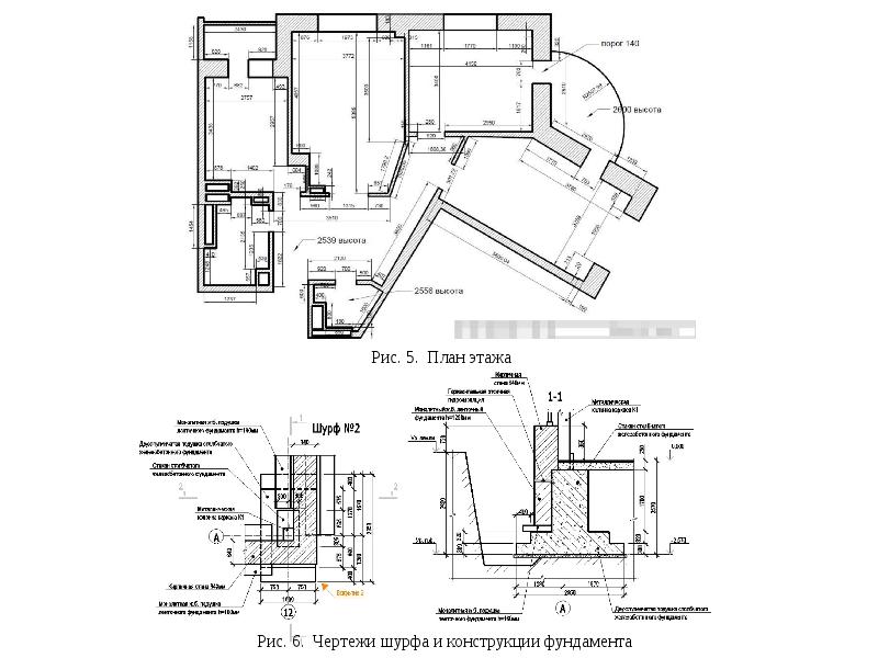
- 7. Результаты проведения обмерных работ
- 8. Оборудование для проведения обмерных работ
- 9. Требования к проведению обмерных работ
- 10. Требования к исполнителям обмерных работ
- 11. Порядок выполнения обмерных работ
- 12. Организация обмерных работ
- 14. Натурный метод
- 15. Геодезический метод
- 16. Фотограмметрический метод
- 18. Лазерное сканирование
- 21. Организация обмерных работ
- 29. Заключение
- 30. Список литературы ГОСТ Р 21.1101-2013 Система проектной документации для строительства (СПДС).
- 31. Скачать презентацию





























Слайды и текст этой презентации
Скачать презентацию на тему :
“Обмерные работы (содержание, цель, документация, можно ниже:
Похожие презентации